HOME > 物件情報 > 大阪市港区港晴3丁目
民泊としても最適です! 駅から徒歩8分の好立地物件です!
この物件にお問合せ
価格:2,020万円間取り:2K土地面積:公簿 34.77㎡ (10.51坪) 建物面積:52.99㎡
価格:388万円間取り:3DK 土地面積:公簿 39.63㎡ (11.98坪) 建物面積:72.03㎡
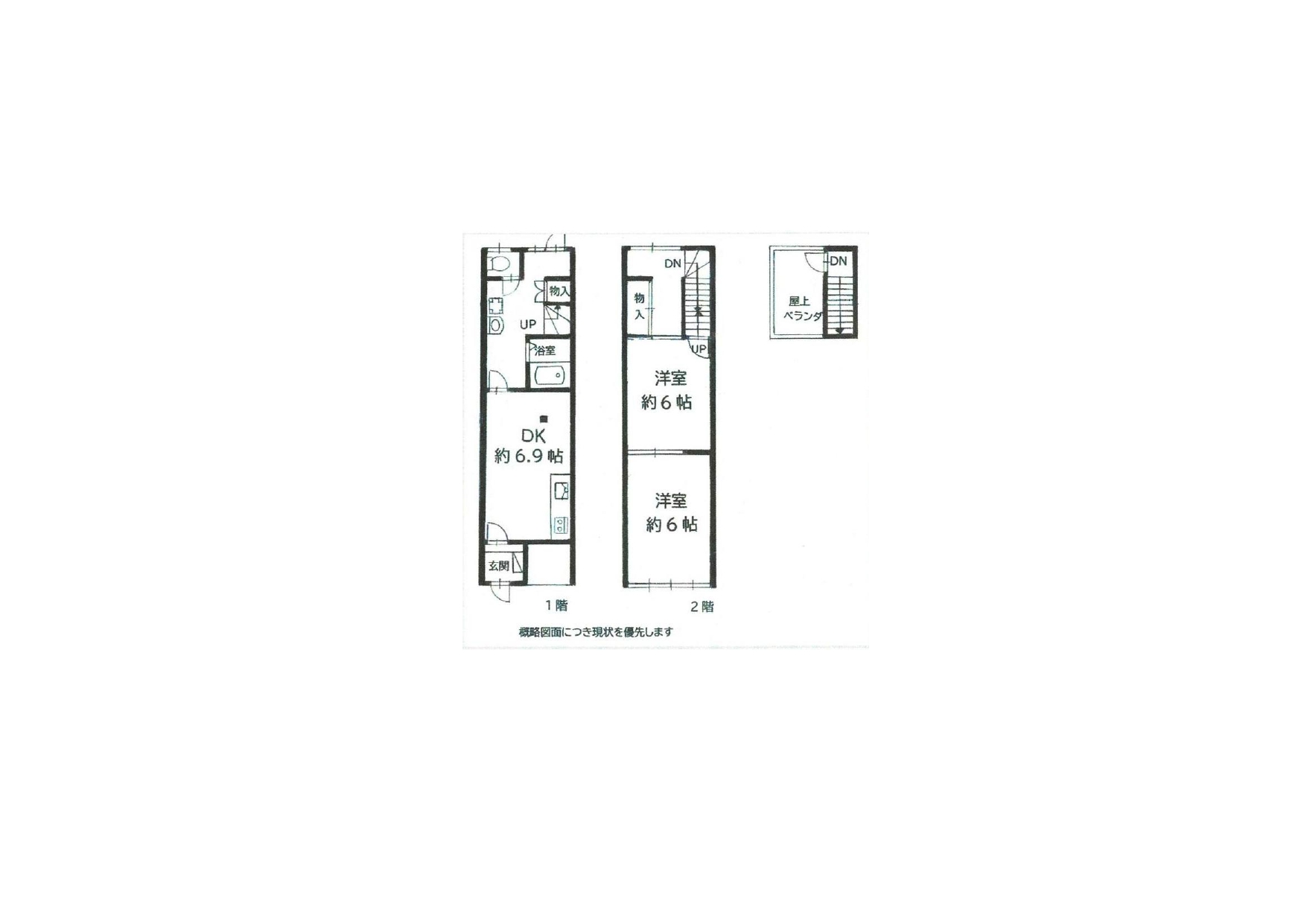
価格:1,980万円間取り:2K 土地面積:公簿 28.36㎡ (8.57坪) 建物面積:42.90㎡
価格:1,980 万円間取り:4DK 土地面積:公簿 49.85㎡ (15.07坪) 建物面積:78.04㎡